Wij staat in voor stabiliteitstudies voor overheidsopdrachten (openbare gebouwen, scholen, sociale woningen,...), privé-projecten (appartementen, woningen,...). en restauratie.
Hieronder vindt u enkele eerdere projecten.
Bouwheer : Jean-Pierre Debavaye - n.v. DILI
Ontwerper : François Du Bois
Opdracht : Stabiliteitsstudie.





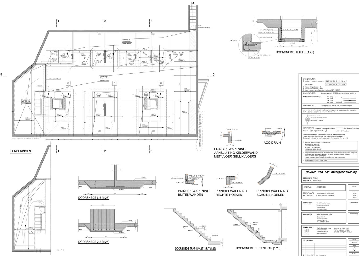
Bouwheer : De heer en mevrouw Van Gestel
Ontwerper : Artec architectenbureau
Opdracht : Stabiliteitsstudie privé appartementen.




Bouwheer : Tessenderlo Chemie
Ontwerper : Artec NV.
Opdracht : Stabiliteitsstudie.






Ontwerper : Architectenbureau Ca-Sa
Opdracht : Stabiliteitsstudie.





Opdracht : Stabiliteitsstudie Beton. (2000 - onderaanneming voor Technum-Democo-Tractebel).

Bouwheer : Zwijndrechtse huisvestingsmaatschappij
Ontwerper : DGD architecten
Opdracht : Stabiliteitsstudie.



Bouwheer : Zwijndrechtse huisvestingsmaatschappij.
Ontwerper : Artec architecten.
Opdracht : Stabiliteitsstudie.



Bouwheer : V.T.I.
Opdracht : Stabiliteitsstudie School. Studie in 2001. Uitvoering in 2002 In samenwerking met S.W.B.O. .



Bouwheer : Kerkfabriek
Ontwerper : Architectenbureau Van Severen
Opdracht : Stabiliteitsstudie gewelf, met voorstel tot versteviging. Studie in 2005.

